Официальный сайт застройщика AVA

РЕЖИССЕР

 
площадь

от 39,7 м²

 
стоимость

от 7 400 000 ₽

 
завершение

3 кв. 2026

Жилой комплекс «Режиссёр» расположен в деловой части Краснодара, рядом с крупными торговыми центрами, ресторанами, фитнес-клубами, школами, детскими садами и медицинскими учреждениями. Жители получают закрытый двор, приподнятый над уровнем улицы, с детскими и спортивными площадками, амфитеатром и зелёными зонами отдыха без машин и посторонних. Повседневные задачи решаются в несколько шагов от дома: на первых этажах предусмотрены магазины и сервисы, а неподалёку находятся большие торгово-развлекательные комплексы городского уровня. Современная архитектура, панорамные окна и продуманное вечернее освещение создают ощущение статусного городского пространства, где комфорт и эстетика становятся стандартом. Жизнь в «Режиссёре» даёт доступ ко всем возможностям большого города при сохранении тишины, безопасности и продуманного комфорта внутри собственного дома.

Мы, AVA Group, создаём жилые комплексы в Краснодаре и на юге России уже много лет и входим в число крупнейших застройщиков региона. Реализованные проекты и профессиональные награды, включая признание ЖК «Режиссёр» одним из лучших региональных объектов, подтверждают нашу репутацию ответственного девелопера. Мы организуем сделки так, чтобы вам было спокойно: используем проектное финансирование и эскроу-счета, тщательно готовим документы и сопровождаем вас от выбора квартиры до получения ключей. В каждом проекте мы закладываем продуманную инфраструктуру, качественные материалы и технические решения, потому что отвечаем за результат своим именем.

ТИПОВЫЕ ПЛАНИРОВКИ ОБЪЕКТОВ

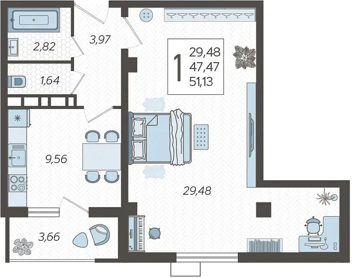
1-комнатные

Площадь от 39.7 м2

от 7.400.000 руб

2-комнатные

Площадь от 60.3 м2

от 8.200.000 руб

3-комнатные

Площадь от 91.7 м2

от 12.700.000 руб

5-комнатные

Площадь от 170.8 м2

от 25.500.000 руб

возьмите максимум от вашей покупки

акции ограничены, успейте воспользоваться уникальными предложениями до конца месяца

скидки до 15%

в зависимости от типа оплаты

с ремонтом

доступны квартиры с отделкой: расставьте мебель и впустите кота

ИПОТЕКА ОТ 6%

ставка на все проекты застройщика от 6% годовых

ипотечный калькулятор

укажите параметры и рассчитайте ежемесячный платеж

7 400 000 30 000 000
20% 100%
1
1 30
* Расчёты не являются публичной офертой. Конечные условия кредитования определяются банком после рассмотрения заявки
Пожалуйста, укажите телефон
Согласен с политикой конфиденциальности
Необходимо согласие

Познакомьтесь с комплексом:

РЕЖИССЕР ЭТО

Вы приобретаете квартиру от одного из крупнейших девелоперов региона, за которым стоит десятки завершённых проектов и многолетняя история работы. Репутация компании подтверждена профессиональными наградами и тысячами семей, уже выбравших наши проекты для жизни и инвестиций.

Жители комплекса оказываются в одном из наиболее динамичных районов города, где поблизости сосредоточены деловые центры, сервисы и объекты городской жизни. Такое расположение даёт доступ к возможностям большого города без лишних переездов и потери времени. Здесь удобно жить, работать и принимать гостей.

Район обеспечивает быстрый выезд на основные городские магистрали и федеральную трассу. Путь до побережья Чёрного моря занимает примерно пару часов на автомобиле, и выходные легко превращаются в отдых на побережье. У вас есть свобода выбора: работа в крупном городе и возможность регулярно менять обстановку.

В ближайшем окружении комплекса уже работают школы, детские сады и развивающие центры, а район продолжает активно пополняться новыми образовательными объектами. Родители получают возможность организовать обучение и воспитание детей без долгих поездок по городу. Наличие рядом школ и садиков повышает комфорт повседневной жизни и формирует ощущение заботы о будущем семьи.

На первых этажах комплекса предусмотрены магазины и сервисы, а в пешеходной доступности расположены крупные торгово-развлекательные центры городского уровня. Повседневные покупки, досуг, рестораны, кино и фитнес собираются вокруг вашего адреса. Это экономит время и делает жизнь более удобной и насыщенной.

В комплексе предусмотрено большое количество машино-мест во внутренних паркингах, а для гостей запроектированы дополнительные парковочные зоны по периметру. Владельцы автомобилей получают уверенность, что место для машины найдётся и днём, и вечером. Отсутствие хаотичной парковки во дворе делает пространство более аккуратным и безопасным.

Жители получают двор, закрытый от посторонних и полностью свободный от автомобильного движения. Здесь расположены детские и спортивные площадки, места для спокойного отдыха и амфитеатр, где можно провести время с семьёй или друзьями. Такая среда формирует чувство приватности и даёт возможность по-настоящему отдыхать дома.

Современные фасады, панорамные окна и вечерняя подсветка создают выразительный облик комплекса, который выгодно выделяется на фоне типовой застройки. Внутри доступны разные форматы квартир: от привычных планировок до крупных и редких вариантов с увеличенными площадями и ощущением настоящего пространства. Вы получаете визуально и функционально продуманное пространство.

ОНЛАЙН КОНСУЛЬТАЦИЯ

получите больше информации о проекте
и задайте свои вопросы

MAX

НЕ НАШЛИ ПОДХОДЯЩЕЕ?

Укажите параметры недвижимости, и мы подберем варианты в течение дня бесплатно

Пожалуйста, укажите телефон
Согласен с политикой конфиденциальности
Необходимо согласие
Написать в мессенджер